
Nytt vård- och omsorgsboende
Vårgårda kommun är i behov av att bygga 90 nya bostäder för äldre i anslutning till det befintliga Kullingshemmet. I tät samverkan med Vårgårda kommun och Peab har vi ritat ett vårdboende som prioriterar de boendes livskvalitet genom att skapa rika och skyddade utemiljöer, samt integrerar den nya byggnaden med Kullingshemmet via en glasad gång för bästa funktion och hemkänsla.
År
2025
Plats
Vårgårda
Kund
Peab
Kontakt
Otto Eriksson
Arkitekt
0739-84 37 17
oter@liljewall.se

Ljus interiör med utblickar mot grönskan.

Vy från en av boendets lägenheter.
Arkitektur med fokus kvalitativa utemiljöer
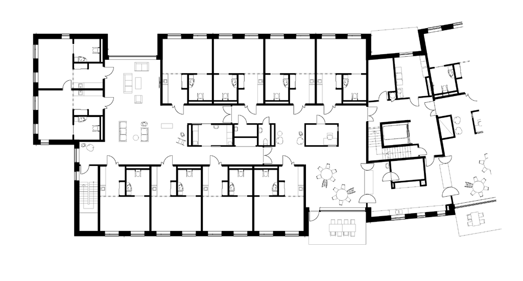
Det befintliga Kullingshemmet i Vårgårda är uttjänt och har en byggnadsstruktur som inte rymmer de krav som ett nytt vård- och omsorgsboende ställer. Därmed uppstod behovet av en nybyggnad med ca 90 lägenheter, fördelat på nio avdelningar. Den nya byggnaden har placerats med stort fokus på att skapa användbara och kvalitativa utemiljöer. Byggnaden ramar in två gårdar, som blir skyddade och lättillgängliga för de äldre.
Vår utgångspunkt var också att minimera nybyggnaden genom att placera så många utrymmen som möjligt i den befintliga byggnaden. En glasad gång genom trädgården förbinder det gamla med det nya.



Ett boende som erbjuder trygghet och möjlighet till ett socialt liv
Ett vårdboende för äldre är ofta den sista bostaden i livet för dem som bor där. Inte sällan är de äldre sjuka och har svårt att komma iväg till andra platser i samhället. En mycket stor del av tiden tillbringas i den bostad och avdelning som är ens hem. Det är viktigt att denna miljö utformas så att den blir så rik och varierad som möjligt. Att den inbjuder till möten och samtal med grannar och personal.
I Vårbo är avdelningen utformad så att många av de boende har en social yta alldeles utanför sin bostadsdörr. Istället för att mötas av en korridor möter man en granne, personal eller en fåtölj att sätta sig i. Avdelningen har sociala ytor av olika karaktär och storlek. Utblickar åt olika håll ger värdefull utsikt och ökar orienterbarheten. Dagsljusinsläpp från olika väderstreck ger varierande ljus under dagen.
Vårdboendet byggs i två etapper, med möjlighet att i framtiden bygga ut en tredje etapp med 30 lägenheter.
“Sociala ytor i olika lägen och väderstreck och möjlighet att komma ut i flera olika gårdsmiljöer, skapar en rik och varierad miljö för de äldre.”
Otto Eriksson, uppdragsansvarig arkitekt, Liljewall
Korta fakta
-
Kund
Peab
-
Ort
Vårgårda
-
Bruttoarea
7200 kvm
-
Status
Under produktion
-
Projektteam
-
Uppdragsansvarig arkitekt
Otto Eriksson
-
Handläggande arkitekt
Javier Perez
-
Medverkande arkitekt
Linda Bergqvist
-
Handläggande ingenjör
Elisabeth Skoglund
-
Medverkande ingenjör
Therese Berg
-
Ansvarig landskapsarkitekt
Sofia Classon
-
Handläggande landskapsarkitekt
Ionna Olsson
-
Visualisering
Gabriella Falk
-
Tillgänglighetssakkunnig
Klara Laufke
-