
Nybyggnad av bostäder för personer med autism
På en lantligt belägen och väl skyddad plats har vi ritat ett boende för personer med stort behov av avskildhet och stöd i vardagen. Doft av skog och utsikt över åkrar ger lugn och ro.
År
2024
Plats
Åled
Kund
Halmstads kommun
Kontakt
Otto Eriksson
Arkitekt
0739-84 37 17
oter@liljewall.se


Här visas den plats vi tagit hänsyn till vid utformningen av Älvdalens gruppbostad. Naturen är en central del av projektet och bidrar med en rogivande karaktär som främjar hälsa och välmående.

Arkitektur med fokus på boendekvaliteter
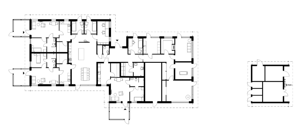
Halmstads kommun bygger ett boende för personer med autism. Man har identifierat en plats med ett stort mått av avskildhet och med goda förutsättningar för ett bra boende. Tomten ligger i byns utkant, alldeles för sig själv på gränsen mellan skog och åker. Här har vi ritat bostäder med mycket höga krav på avskildhet, ett minimum av insyn och intryck samt med en välfungerande arbetsmiljö för personalen. Samtidigt har vi haft fokus på att skapa höga boendekvaliteter som skapar trivsel över lång tid.
Målgruppen är i behov av stort stöd, vilket gör verksamheten personalintensiv. Kraven på avskildhet och ett minimum av störande intryck är också långtgående. Bostäderna behöver placeras så att de boende varken ser eller stör varandra. Specifika krav på utformning och rumssamband påverkar bostaden.


God arbetsmiljö och lugn arkitektur skapar ett tryggt hem
Ett stort fokus har också legat på att verka för en god och välfungerande arbetsmiljö. Personalen har från sina utrymmen god överblick och närhet till varje bostad. Ett flertal jourrum finns för sovande personal. I huset finns också aktivitetsutrymmen för de boende, såsom spa-rum och gymnastikrum.
Byggnaden tar utgångspunkt i landsbygdsbebyggelsen med en faluröd fasad och lertegel på taket. En lågmäld byggnad, formad för att under lång tid ge de boende ett trivsamt och tryggt hem.
“En lågmäld arkitektur, försiktigt placerad på gränsen mellan skog och åker. Platsen ger oss goda förutsättningar att skapa ett rofyllt hem.”
Otto Eriksson, uppdragsansvarig arkitekt, Liljewall
Korta fakta
-
Kund
Halmstads kommun
-
Ort
Åled
-
Bruttoarea
505 kvm
-
Status
Under produktion
-
Projektteam
-
Uppdragsansvarig arkitekt
Otto Eriksson
-
Handläggande arkitekt
Linda Bergqvist
-
Medverkande arkitekt
Anders Nilsson
-
Visualisering
Gabriella Falk
-
Karl-Johan Bexér
-